Családiház 1055

Családiház 1055
Családiház 1055
Családiház 1055
Családiház 1055
Családiház 1055

Otthon, ami érted épül.
Ez a modern, fiablokk téglából készült családi ház ötvözi a tartósságot, az energiahatékonyságot és az egyedi életstílust.
A korszerű hőszivattyús fűtésrendszer garantálja az alacsony fenntartási költségeket és a környezettudatos működést.
Letisztult formavilág, élhető terek, időtálló megoldások – minden a kényelmedet szolgálja.
A ház bármilyen méretben és elrendezésben elérhető, teljesen az egyéni igényeid szerint alakítjuk ki.
Legyen szó fiatal párokról, bővülő családokról vagy nyugalmat kereső otthonteremtőkről, ez a ház mindig alkalmazkodik hozzád.
A Dorha Házaknál hiszünk abban, hogy az otthon nem sablon, hanem személyes tér.
Ezért nem csupán házat építünk – álmaid otthonát valósítjuk meg veled közösen.
Válassz egy biztos alapot, és indulj el velünk az otthonod felé vezető úton!
Dorha Házak – ahol a tervek életre kelnek.

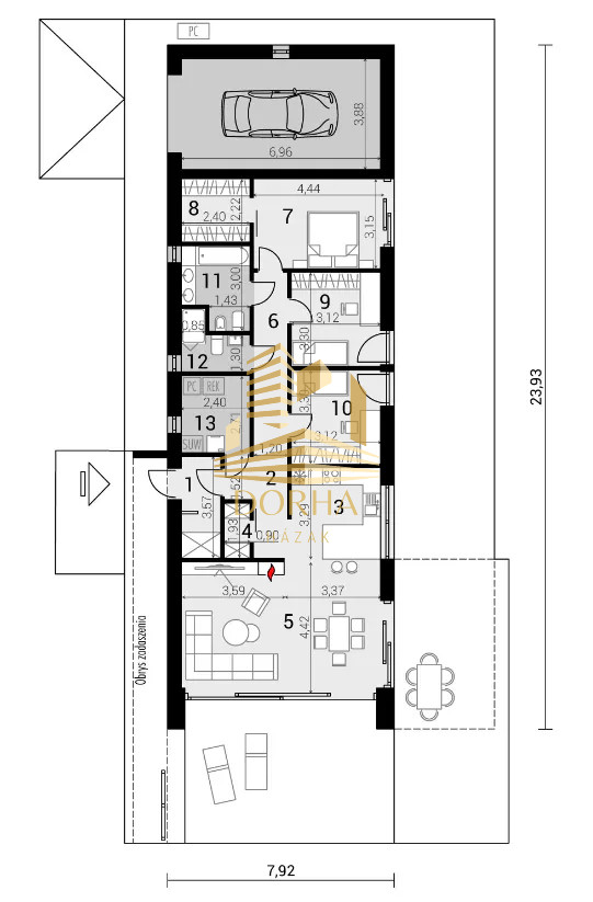
Alapterület
90, 100, 110, 120, 130, 140, 150, 160, 170, 180, 190, 200, 220, 240, 260, 280, 300
58 500 000 Ft
Nincs raktáron
Részletek

Egy ház, amit rád szabunk – tervezéstől kulcsátadásig

Teljes generálkivitelezés a Dorha Házaktól, fiablokk téglából, modern technológiával
Ha olyan családi házat keresel, amely nem sablon, hanem egyedi válasz az igényeidre, akkor jó helyen jársz. A Dorha Házak által kínált új építésű, fiablokk téglából készült családi ház a stabilitás, a modern megjelenés és az energiatakarékos működés tökéletes kombinációja – és ami a legfontosabb: teljes mértékben testre szabható.

Teljes generálkivitelezés – Neked csak az álmaidra kell figyelni
A Dorha Házaknál a házépítés nem a gondokról, hanem a megvalósításról szól. Vállaljuk az egész projekt generálkivitelezését:

Telekvizsgálat és előkészítés,
Tervezés és engedélyeztetés,
Szerkezetépítés,
Gépészet és szigetelés,
Belső munkák,
egészen a kulcsrakész átadásig.
Nem kell külön alvállalkozókkal bajlódnod, nem kell építési szaknyelvet beszélned – mi minden részletet kézben tartunk, átláthatóan, korrekt módon.
Generálkivitelezőként a célunk, hogy neked csak be kelljen költöznöd.

Miért éppen ez a családi ház?

Ez az épület nem egy fix méretű, előregyártott megoldás, hanem egy rugalmas alap, amely bármilyen élethelyzethez alakítható. Legyen szó fiatal párról, kisgyermekes családról vagy akár többgenerációs együttélésről, a belső kialakítást és a külső megjelenést együtt tervezzük meg veled.

A minőség alapja: fiablokk tégla
A falazat fiablokk rendszerből készül, amely kiváló hőtartó képessége és teherbírása miatt vált a korszerű családi házak egyik legmegbízhatóbb építőanyagává. A fiablokk természetes alapanyagú, stabil szerkezetet biztosít, amely hosszú távon ellenáll az időjárás viszontagságainak és a mechanikai terhelésnek is.

Energiatakarékosság és komfort – már a falakon túl is
Az épületet 15 cm vastag dryvit rendszerű hőszigeteléssel látjuk el, mely jelentősen csökkenti a fűtési-hűtési igényt, és ezzel együtt a havi rezsit is. A külső nyílászárók háromrétegű hőszigetelő üvegezéssel készülnek, kiváló légzárású profilrendszerrel, amely nemcsak hő-, de hangszigetelésben is élen jár.

Modern technológia – egy jövőálló otthonért

A fűtés és melegvíz-ellátás központjában egy modern, hőszivattyús rendszer áll, amely környezetbarát módon üzemel, minimális energiabefektetéssel. A rendszer igény szerint kombinálható padlófűtéssel, fan-coil egységekkel vagy akár okos vezérléssel is, hogy minden helyiség hőmérsékletét precízen szabályozhasd.

Ez a ház nem csak energiatakarékos, de hosszú távon is fenntartható – és ezzel már most megfelel a jövő elvárásainak.
Egyedi kialakítás – mert nincs két egyforma élet

A legnagyobb előny, amit a Dorha Házak kínál, az a teljes személyre szabhatóság.
A te elképzeléseid alapján:

változtathatjuk a méretet,
az alaprajzi elrendezést,
a homlokzati kialakítást,
sőt a belső anyaghasználatot és technológiai megoldásokat is.
Ez a ház nem kész termék – hanem lehetőség egy tökéletes otthonra, amit veled együtt alkotunk meg.

Miért válaszd a Dorha Házakat?

Teljes körű generálkivitelezés
Megbízható, tapasztalt csapat
Folyamatos kapcsolattartás, naprakész tájékoztatás
Minőségi anyagok, korszerű technológia
Egyedi igények figyelembevétele
Kulcsrakész megoldások stresszmentesen

Összefoglalás

Ez a családi ház egy olyan otthon alapja, amely hosszú távon stabil, energiatakarékos és valóban hozzád illik. A fiablokk falazat, a 15 cm dryvit szigetelés, a háromrétegű nyílászárók és a modern hőszivattyús fűtés együtt egy magas komfortú, alacsony rezsijű otthont eredményez.
És mindez nem elmélet – a Dorha Házak generálkivitelezésében ez valósággá válik.

Ne alkudj meg a sablonos megoldásokkal – építsd meg velünk az otthonodat úgy, ahogy megálmodtad!

Adatok
Cikkszám
Csaladihaz_1055